
Our Location

Set in the iconic Factory at Franklin, Kaleidoscope Studios is surrounded by local restaurants, artisan vendors, and boutique shops. You'll find favorites like Mojo’s Tacos, Five Daughters Bakery, and Two Hands, as well as handcrafted finds from local makers.
Inside, the studio transforms your event into something extraordinary. With modern design, flexible layouts, and with broadcast-quality live streaming, your event can be anything you want and reach people around the world.
Whether you're hosting a brand launch, team event, or live production, this is the space where your event will thrive.
Our Space
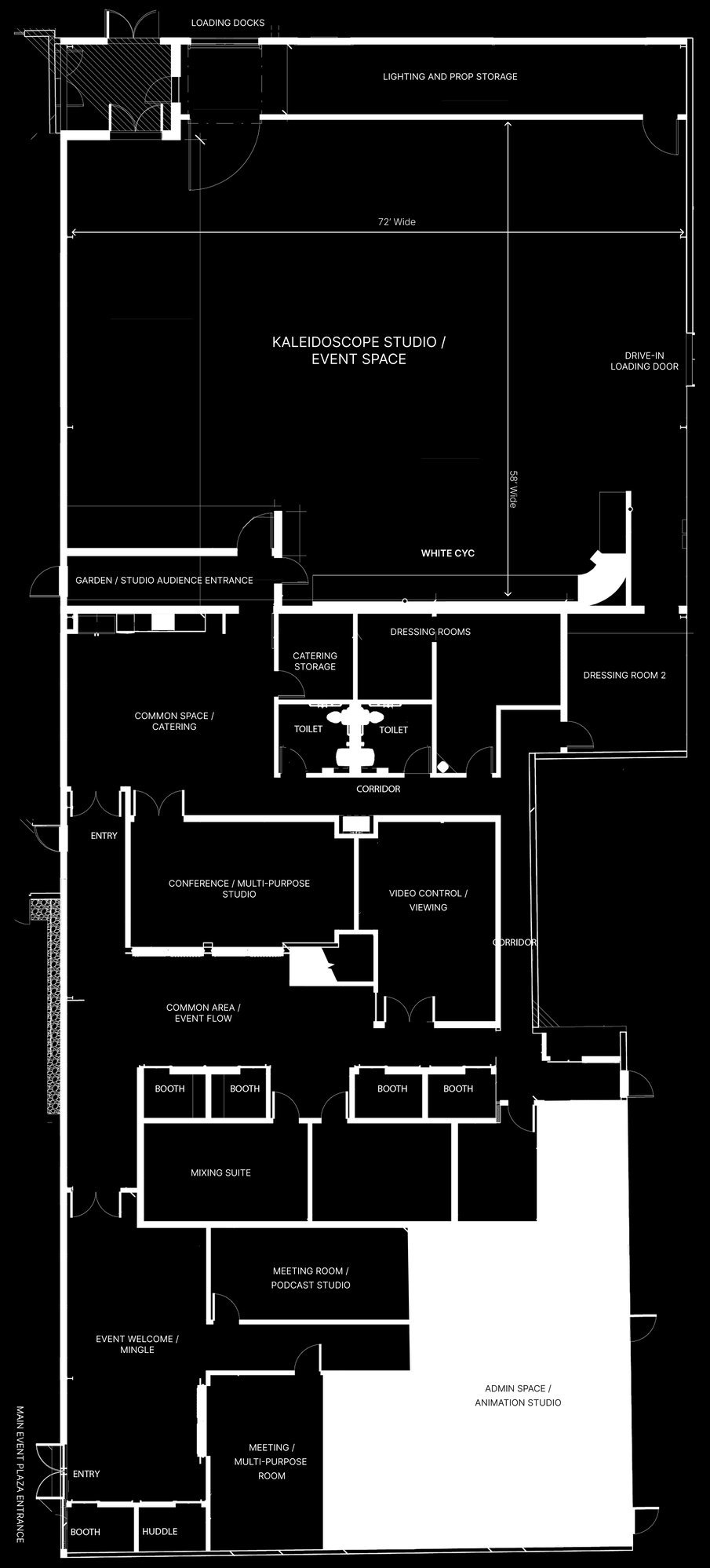
Studio Specs
Whatever kind of event you're dreaming up - theater style, live performance, professional presentations - we'll work closely with you to design and coordinate every detail.
- Theatre
- Classroom
- Rounds/Semi-Rounds
- Option to combine with other venues in our complex for multi-room events
-
Music stage
-
Presentation stages
-
Multiple projection options
- Soft goods available to create theatrical experience
- Custom event branding and design available
- Excited and Outgoing culture eager to help you create your event
-
Creature Comforts
-
Sound/Lighting Included
-
Optional Upgrades


